24小时服务电话:400-697-9948
充换电业务服务电话:400-667-0777
型号及其含义:

产品特点:
铁芯
全部采用优质晶粒取向冷轧硅钢片,全斜无孔绑扎结构,铁芯为多级阶梯形,三接缝或五接缝,空损低、噪音小;卷铁芯用专用设备直接卷绕而成,无接缝、无角重,减少了磁阻,空损低;非晶合金变压器铁芯是一种更优质的铁芯材料,与传统硅钢片相比,平均降低空损72% ,空载电流50% 。
线圈
采用优质QQ缩醛漆包圆铜线,无氧铜杆拉制的扁铜钱绕制而成,其形式有圆筒式、连续式、新型螺旋式、分裂式等,具有足够的电气强度、机械强度和散热能力。为了增加变压器的抗短路能力,可采用更优质的自粘换位导线。其采用自粘缩醛漆包扁线,绕成线圈后,经加热漆包扁线之间相互粘合,形成具有刚性的线圈,能承受更大的弯曲应力,从而增强了变压器的抗短路能力。自粘换位导线的最大特点是能降低变压器的损耗,由于多股分割的导体加上换位,大大的降低了涡流损耗和环流损耗,能降低绕组热点的温升,使整个绕组温度分布更为均匀。
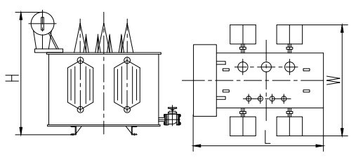
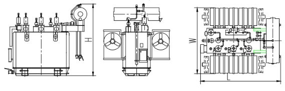
油箱
采用优质钢板焊接而成,有椭圆型、矩型等结构,散热元件采用片式散热器、膨胀散热器或波纹油箱,油箱在厂内进行可靠的密封试验,内外表面经酸洗、磷化处理后,进行三底一面油漆喷涂,既抗腐蚀又美观大方。
1、S11系列35kV 三相油浸式自冷双绕组无励磁调压配电变压器

| 型号 | 额定容量(kVA) | 典型电压组合(kV) | 联结组标号 | 阻抗电压(%) | 总重 (t) |
参考尺寸(mm) L*W*H |
空载损耗(kW) | 负载损耗(W) |
| S11-50/35 | 50 | 高压H.V. 35,38.5 ±2×2.5% ±5% 低压L.V. 0.4 |
Dyn11 Yyn0 |
6.5 | 1.28 | 1400*1000*1800 | 0.16 | 1.2/1.14 |
| S11-100/35 | 100 | 1.67 | 1450*1050*1900 | 0.23 | 2.01/1.91 | |||
| S11-125/35 | 125 | 1.9 | 1500*1100*1900 | 0.27 | 2.37/2.26 | |||
| S11-160/35 | 160 | 2.2 | 1550*1150*1950 | 0.28 | 2.82/2.68 | |||
| S11-200/35 | 200 | 2.4 | 1600*1200*2000 | 0.34 | 3.32/3.16 | |||
| S11-250/35 | 250 | 2.5 | 1700*1600*2100 | 0.4 | 3.95/3.76 | |||
| S11-315/35 | 315 | 2.6 | 1900*1700*2200 | 0.48 | 4.75/4.53 | |||
| S11-400/35 | 400 | 2.8 | 2000*1800*2300 | 0.58 | 5.74/5.47 | |||
| S11-500/35 | 500 | 3 | 2100*1900*2400 | 0.68 | 6.91/6.58 | |||
| S11-630/35 | 630 | 3.3 | 2310*2200*2500 | 0.83 | 7.86 | |||
| S11-800/35 | 800 | 3.8 | 2500*2250*2550 | 0.98 | 9.4 | |||
| S11-1000/35 | 1000 | 4.2 | 2550*2300*2600 | 1.15 | 11.5 | |||
| S11-1250/35 | 1250 | 4.8 | 2680*2400*2700 | 1.4 | 13.9 | |||
| S11-1600/35 | 1600 | 5.7 | 2700*2450*2750 | 1.69 | 16.6 | |||
| S11-2000/35 | 2000 | 6.2 | 2800*2500*2900 | 1.99 | 19.7 | |||
| S11-2500/35 | 2500 | 7.8 | 2850*2650*2950 | 2.36 | 23.2 |
2、S(F)11系列35kV三相油浸式自冷(风冷)双绕组无励磁调压电力变压器

| 型号 | 额定容量(kVA) | 典型电压 组合(kV) |
联结组 标号 |
阻抗电 压(%) |
总重 (t) |
参考尺寸(mm) L*W*H |
空载损耗 (W) |
负载损耗 (W) |
| S(F)11-6300/35 | 6300 | 高压H.V. 35~38.5 ±2×2.5% 低压L.V. 3.15,3.3,6.3, 6.6,10.5 |
YNd11 | 8 | 15 | 3600*3200*3100 | 5.24 | 35 |
| S(F)11-8000/35 | 8000 | 18 | 3800*3300*3300 | 7.2 | 38.4 | |||
| S(F)11-10000/35 | 10000 | 20 | 3900*3300*3500 | 8.7 | 45.3 | |||
| S(F)11-12500/35 | 12500 | 24 | 4000*3400*3700 | 10 | 53.8 | |||
| S(F)11-16000/35 | 16000 | 28 | 4200*3600*3800 | 12.1 | 65.8 | |||
| S(F)11-20000/35 | 20000 | 33 | 4500*3800*4000 | 14.4 | 79.5 | |||
| S(F)11-25000/35 | 25000 | 10 | 37 | 4700*4000*4100 | 17 | 94 | ||
| S(F)11-31500/35 | 31500 | 44 | 5000*4200*4300 | 20.2 | 112 |
3、S(F)Z11系列35kV 三相油浸式自冷(风冷)双绕组有载调压电力变压器

| 型号 | 额定容量(kVA) | 典型电压 组合(kV) |
联结组 标号 |
阻抗电 压(%) |
总重 (t) |
参考尺寸(mm) L*W*H |
空载损耗 (W) |
负载损耗 (W) |
| S(F)Z11-6300/35 | 6300 | 高压H.V. 35~38.5 ±2×2.5% 低压L.V. 3.15,3.3,6.3, 6.6,10.5 |
YNd11 | 8 | 18 | 4000*3300*3100 | 5.63 | 36.7 |
| S(F)Z11-8000/35 | 8000 | 21 | 4200*3400*3300 | 7.87 | 40.6 | |||
| S(F)Z11-10000/35 | 10000 | 23 | 4300*3500*3500 | 9.28 | 48 | |||
| S(F)Z11-12500/35 | 12500 | 28 | 4800*3500*3700 | 10.71 | 56.8 | |||
| S(F)Z11-16000/35 | 16000 | 33 | 5000*3800*3800 | 13.1 | 70.3 | |||
| S(F)Z11-20000/35 | 20000 | 38 | 5300*4000*4000 | 15.5 | 82.7 | |||
| S(F)Z11-25000/35 | 25000 | 10 | 43 | 5500*4200*4100 | 18.3 | 97.8 | ||
| S(F)Z11-31500/35 | 31500 | 50 | 5800*4400*4300 | 21.8 | 116 |