24小时服务电话:400-697-9948
充换电业务服务电话:400-667-0777

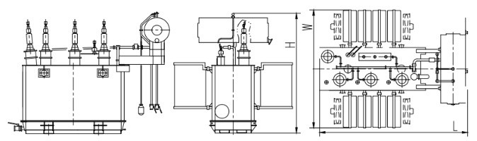
产品特点:
铁芯
全部采用优质晶粒取向冷轧硅钢片,全斜无孔绑扎结构,铁芯为多级阶梯形,三接缝或五接缝,空损低、噪音小;卷铁芯用专用设备直接卷绕而成,无接缝、无角重,减少了磁阻,空损低;非晶合金变压器铁芯是一种更优质的铁芯材料,与传统硅钢片相比,平均降低空损72% ,空载电流50% 。
线圈
采用优质QQ缩醛漆包圆铜线,无氧铜杆拉制的扁铜钱绕制而成,其形式有圆筒式、连续式、新型螺旋式、分裂式等,具有足够的电气强度、机械强度和散热能力。为了增加变压器的抗短路能力,可采用更优质的自粘换位导线。其采用自粘缩醛漆包扁线,绕成线圈后,经加热漆包扁线之间相互粘合,形成具有刚性的线圈,能承受更大的弯曲应力,从而增强了变压器的抗短路能力。自粘换位导线的最大特点是能降低变压器的损耗,由于多股分割的导体加上换位,大大的降低了涡流损耗和环流损耗,能降低绕组热点的温升,使整个绕组温度分布更为均匀。
油箱
采用优质钢板焊接而成,有椭圆型、矩型等结构,散热元件采用片式散热器、膨胀散热器或波纹油箱,油箱在厂内进行可靠的密封试验,内外表面经酸洗、磷化处理后,进行三底一面油漆喷涂,既抗腐蚀又美观大方。
产品正常使用条件
周围空气温度:
最高气温:+40℃;
最低气温:-45℃;
最热月平均气温:+30℃;
最热年平均气温:+20℃;
海拔高度:≤1000m;
污秽等级:Ⅲ级;
地震烈度:中国12级标准8级;
电源电压波形:近似正弦波;
注:如果超出以上使用条件,请在订货时说明,以便特殊考虑。
1、S(F)11系列66kV 三相油浸式自冷(风冷)双绕组无励磁调压电力变压器

| 型号 | 额定容量(kVA) | 典型电压 组合(kV) |
联结组 标号 |
阻抗电 压(%) |
总重 (t) |
参考尺寸(mm) L*W*H |
空载损耗 (W) |
负载损耗 (W) |
| S(F)11-6300/66 | 6300 | 高压H.V. 35~38.5 ±2×2.5% 低压L.V. 3.15,3.3,6.3, 6.6,10.5 |
YNd11 | 9 | 20 | 4800*3900*4000 | 7.3 | 34.2 |
| S(F)11-8000/66 | 8000 | 22 | 4900*4100*4200 | 8.9 | 40.5 | |||
| S(F)11-10000/66 | 10000 | 25 | 5000*4300*4400 | 10.5 | 47.8 | |||
| S(F)11-12500/66 | 12500 | 28 | 5100*4400*4500 | 12.4 | 56.8 | |||
| S(F)11-16000/66 | 16000 | 30 | 5200*4600*4600 | 15 | 69.8 | |||
| S(F)11-20000/66 | 20000 | 34 | 5300*4700*4800 | 17.6 | 84.6 | |||
| S(F)11-25000/66 | 25000 | 41 | 5500*4700*5000 | 20.8 | 100 | |||
| S(F)11-31500/66 | 31500 | 46 | 5600*4800*5200 | 24.6 | 120 | |||
| S(F)11-40000/66 | 40000 | 57 | 5800*5000*5300 | 29.4 | 141 | |||
| S(F)11-50000/66 | 50000 | 67 | 6000*5300*5500 | 35.2 | 167 | |||
| S(F)11-63000/66 | 63000 | 73 | 6200*5600*5700 | 41.6 | 198 |
2、S(F)Z11系列66 kV 三相油浸式自冷(风冷)双绕组有载调压电力变压器

| 型号 | 额定容量(kVA) | 典型电压 组合(kV) |
联结组 标号 |
阻抗电 压(%) |
总重 (t) |
参考尺寸(mm) L*W*H |
空载损耗 (W) |
负载损耗 (W) |
| S(F)11-6300/66 | 6300 | 高压H.V. 35~38.5 ±2×2.5% 低压L.V. 3.15,3.3,6.3, 6.6,10.5 |
YNd11 | 9~11 | 22 | 5600*3800*4000 | 8 | 34.2 |
| S(F)11-8000/66 | 8000 | 24 | 5700*4000*4200 | 9.6 | 40.5 | |||
| S(F)11-10000/66 | 10000 | 27 | 5800*4200*4400 | 11.3 | 47.8 | |||
| S(F)11-12500/66 | 12500 | 30 | 5900*4300*4500 | 13.4 | 56.8 | |||
| S(F)11-16000/66 | 16000 | 33 | 6000*4400*4600 | 16.1 | 69.8 | |||
| S(F)11-20000/66 | 20000 | 36 | 6100*4500*4800 | 19.2 | 84.6 | |||
| S(F)11-25000/66 | 25000 | 43 | 6500*4500*5000 | 22.7 | 100 | |||
| S(F)11-31500/66 | 31500 | 49 | 6600*4600*5200 | 26.9 | 120 | |||
| S(F)11-40000/66 | 40000 | 59 | 6800*4800*5300 | 32.2 | 141 | |||
| S(F)11-50000/66 | 50000 | 10~12 | 69 | 7000*5000*5500 | 38 | 167 | ||
| S(F)11-63000/66 | 63000 | 75 | 7400*5300*5700 | 44.9 | 198 |