24小时服务电话:400-697-9948
充换电业务服务电话:400-667-0777

产品特点:
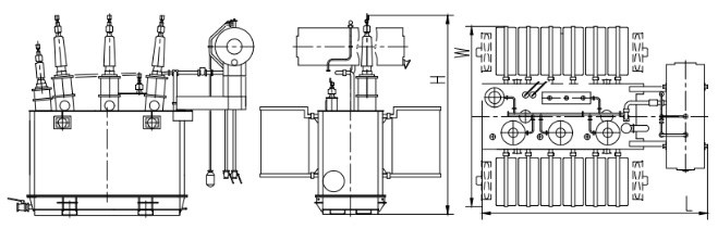
铁芯
全部采用优质晶粒取向冷轧硅钢片,全斜无孔绑扎结构,铁芯为多级阶梯形,三接缝或五接缝,空损低、噪音小;卷铁芯用专用设备直接卷绕而成,无接缝、无角重,减少了磁阻,空损低;非晶合金变压器铁芯是一种更优质的铁芯材料,与传统硅钢片相比,平均降低空损72% ,空载电流50% 。
线圈
采用优质QQ缩醛漆包圆铜线,无氧铜杆拉制的扁铜钱绕制而成,其形式有圆筒式、连续式、新型螺旋式、分裂式等,具有足够的电气强度、机械强度和散热能力。为了增加变压器的抗短路能力,可采用更优质的自粘换位导线。其采用自粘缩醛漆包扁线,绕成线圈后,经加热漆包扁线之间相互粘合,形成具有刚性的线圈,能承受更大的弯曲应力,从而增强了变压器的抗短路能力。自粘换位导线的最大特点是能降低变压器的损耗,由于多股分割的导体加上换位,大大的降低了涡流损耗和环流损耗,能降低绕组热点的温升,使整个绕组温度分布更为均匀。
油箱
采用优质钢板焊接而成,有椭圆型、矩型等结构,散热元件采用片式散热器、膨胀散热器或波纹油箱,油箱在厂内进行可靠的密封试验,内外表面经酸洗、磷化处理后,进行三底一面油漆喷涂,既抗腐蚀又美观大方。
产品正常使用条件
周围空气温度:
最高气温:+40℃;
最低气温:-45℃;
最热月平均气温:+30℃;
最热年平均气温:+20℃;
海拔高度:≤1000m;
污秽等级:Ⅲ级;
地震烈度:中国12级标准8级;
电源电压波形:近似正弦波;
注:如果超出以上使用条件,请在订货时说明,以便特殊考虑。
1、S(F)11系列110 kV 三相油浸式自冷(风冷)双绕组低压10kV无励磁调压电力变压器

| 型号 | 额定容量(kVA) | 典型电压 组合(kV) |
联结组 标号 |
阻抗电 压(%) |
总重 (t) |
运输 重量 (t) |
参考尺寸(mm) L*W*H |
空载损耗 (W) |
负载损耗 (W) |
| S(F)11-6300/110 | 6300 | 高压H.V. 110,115,121 ±2×2.5% 低压L.V. 6.3,6.6,10.5 |
YNd11 | 10.5 | 21 | 16 | 5000*3900*4200 | 7.4 | 35 |
| S(F)11-8000/110 | 8000 | 23 | 18 | 5100*4100*4400 | 8.9 | 42 | |||
| S(F)11-10000/110 | 10000 | 26 | 20 | 5200*4300*4600 | 10.5 | 50 | |||
| S(F)11-12500/110 | 12500 | 29 | 22 | 5300*4400*4700 | 12.4 | 59 | |||
| S(F)11-16000/110 | 16000 | 31 | 26 | 5400*4600*4800 | 15 | 73 | |||
| S(F)11-20000/110 | 20000 | 35 | 29 | 5500*4700*5000 | 17.6 | 88 | |||
| S(F)11-25000/110 | 25000 | 42 | 33 | 5700*4700*5200 | 20.8 | 104 | |||
| S(F)11-31500/110 | 31500 | 47 | 37 | 5800*4800*5400 | 24.6 | 123 | |||
| S(F)11-40000/110 | 40000 | 58 | 45 | 6000*5000*5500 | 29.4 | 148 | |||
| S(F)11-50000/110 | 50000 | 68 | 52 | 6200*5300*5700 | 35.2 | 175 | |||
| S(F)11-63000/110 | 63000 | 74 | 56 | 6400*5600*5900 | 41.6 | 208 | |||
| S(F) 11-75000/110 | 75000 | 高压H.V. 110,115,121 ±2×2.5% 低压L.V. 13.8,15.75,18,21 |
12~14 | 83 | 62 | 6500*5900*6200 | 47.2 | 236 | |
| S(F) 11--90000/110 | 90000 | 94 | 70 | 6800*6300*6400 | 54.4 | 272 | |||
| S(F) 11--120000/110 | 120000 | 118 | 90 | 7000*6700*6600 | 67.8 | 337 |
2、S(F)11系列110 kV 三相油浸式自冷(风冷)双绕组低压35kV无励磁调压电力变压器

| 型号 | 额定容量(kVA) | 典型电压 组合(kV) |
联结组 标号 |
阻抗电 压(%) |
总重 (t) |
运输 重量 (t) |
参考尺寸(mm) L*W*H |
空载损耗 (W) |
负载损耗 (W) |
| S(F)11-6300/110 | 6300 | 高压H.V. 110,115,121 ±2×2.5% 低压L.V. 6.3,6.6,10.5 |
YNd11 | 10.5 | 21 | 16 | 5000*3900*4200 | 8 | 37 |
| S(F)11-8000/110 | 8000 | 23 | 18 | 5100*4100*4400 | 9.6 | 44 | |||
| S(F)11-10000/110 | 10000 | 26 | 20 | 5200*4300*4600 | 11.2 | 52 | |||
| S(F)11-12500/110 | 12500 | 29 | 22 | 5300*4400*4700 | 13.1 | 62 | |||
| S(F)11-16000/110 | 16000 | 31 | 26 | 5400*4600*4800 | 15.6 | 76 | |||
| S(F)11-20000/110 | 20000 | 35 | 29 | 5500*4700*5000 | 18.5 | 94 | |||
| S(F)11-25000/110 | 25000 | 42 | 33 | 5700*4700*5200 | 21.9 | 110 | |||
| S(F)11-31500/110 | 31500 | 47 | 37 | 5800*4800*5400 | 25.9 | 133 | |||
| S(F)11-40000/110 | 40000 | 58 | 45 | 6000*5000*5500 | 30.8 | 155 | |||
| S(F)11-50000/110 | 50000 | 68 | 52 | 6200*5300*5700 | 36.9 | 193 | |||
| S(F)11-63000/110 | 63000 | 74 | 56 | 6400*5600*5900 | 43.6 | 232 |
3、S(F)Z11系列110 kV 三相油浸式自冷(风冷)双绕组有载调压电力变压器

| 型号 | 额定容量(kVA) | 典型电压 组合(kV) |
联结组 标号 |
阻抗电 压(%) |
总重 (t) |
运输 重量 (t) |
参考尺寸(mm) L*W*H |
空载损耗 (W) |
负载损耗 (W) |
| S(F)Z11-6300/110 | 6300 | 高压H.V. 110 ±8×1.25% 低压L.V. 6.3,6.6, 10.5,21 |
YNd11 | 10.5 | 24 | 19 | 5800*3900*4200 | 8 | 35 |
| S(F)Z11-8000/110 | 8000 | 26 | 21 | 5900*4100*4400 | 9.6 | 42 | |||
| S(F)Z11-10000/110 | 10000 | 29 | 23 | 6000*4300*4600 | 11.3 | 50 | |||
| S(F)Z11-12500/110 | 12500 | 32 | 25 | 6100*4400*4700 | 13.4 | 59 | |||
| S(F)Z11-16000/110 | 16000 | 36 | 30 | 6200*4600*4800 | 16.1 | 73 | |||
| S(F)Z11-20000/110 | 20000 | 39 | 33 | 6300*4700*5000 | 19.2 | 88 | |||
| S(F)Z11-25000/110 | 25000 | 46 | 37 | 6700*4700*5200 | 22.7 | 104 | |||
| S(F)Z11-31500/110 | 31500 | 52 | 42 | 6800*4800*5400 | 27 | 123 | |||
| S(F)Z11-40000/110 | 40000 | 12~18 | 63 | 50 | 7000*5000*5500 | 32.3 | 156 | ||
| S(F)Z11-50000/110 | 50000 | 74 | 58 | 7200*5300*5700 | 38.2 | 194 | |||
| S(F)Z11-63000/110 | 63000 | 81 | 63 | 7600*5600*5900 | 45.4 | 232 |
4、S(F)S11系列110kV 三相油浸式自冷(风冷)三绕组无励磁调压电力变压器

| 型号 | 额定容量(kVA) | 典型电压 组合(kV) |
联结组 标号 |
阻抗电 压(%) |
总重 (t) |
运输 重量 (t) |
参考尺寸(mm) L*W*H |
空载损耗 (W) |
负载损耗 (W) |
| S(F)S11-6300/110 | 6300 | 高压H.V. 110,115,121 2×2.5% 中压M.V. 36,37,38.5 低压L.V. 6.3,6.6,1 0.5,21 |
YNyn0 d11 |
高压-低压 H.V.-L.V. 18~19 高压-中压 H.V.-M.V. 10.5 中压-低压 M.V.-L.V. 6.5 |
27 | 23 | 5300*4100*4200 | 8.9 | 44 |
| S(F)S11-8000/110 | 8000 | 31 | 25 | 5400*4300*4400 | 10.6 | 53 | |||
| S(F)S11-10000/110 | 10000 | 33 | 28 | 5500*4500*4600 | 12.6 | 62 | |||
| S(F)S11-12500/110 | 12500 | 39 | 33 | 5600*4600*4700 | 14.7 | 74 | |||
| S(F)S11-16000/110 | 16000 | 45 | 37 | 5700*4800*4800 | 17.9 | 90 | |||
| S(F)S11-20000/110 | 20000 | 51 | 41 | 5800*4900*5000 | 21.1 | 106 | |||
| S(F)S11-25000/110 | 25000 | 56 | 46 | 6000*4900*5200 | 24.6 | 126 | |||
| S(F)S11-31500/110 | 31500 | 62 | 52 | 6100*5000*5400 | 29.4 | 149 | |||
| S(F)S11-40000/110 | 40000 | 73 | 60 | 6300*5200*5500 | 34.8 | 179 | |||
| S(F)S11-50000/110 | 50000 | 80 | 65 | 6500*5500*5700 | 41.6 | 213 | |||
| S(F)S11-63000/110 | 63000 | 97 | 80 | 6700*5800*5900 | 49.2 | 256 |
5、S(F)ZS11系列110 kV 三相油浸式自冷(风冷)三绕组有载调压电力变压器

| 型号 | 额定容量(kVA) | 典型电压 组合(kV) |
联结组 标号 |
阻抗电 压(%) |
总重 (t) |
运输 重量 (t) |
参考尺寸(mm) L*W*H |
空载损耗 (W) |
负载损耗 (W) |
| S(F)SZ11-6300/110 | 6300 | 高压H.V. 110±8×1.25% 中压M.V. 36,37,38.5 低压L.V. 6.3,6.6, 10.5,21 |
YNyn0 d11 |
高压-低压 H.V.-L.V. 18~19 高压-中压 H.V.-M.V. 10.5 中压-低压 M.V.-L.V. 6.5 |
30 | 26 | 6100*4100*4200 | 9.6 | 44 |
| S(F)SZ11-8000/110 | 8000 | 34 | 28 | 6200*4300*4400 | 11.5 | 53 | |||
| S(F)SZ11-10000/110 | 10000 | 36 | 31 | 6300*4600*4600 | 13.6 | 62 | |||
| S(F)SZ11-12500/110 | 12500 | 42 | 36 | 6400*4600*4700 | 16.1 | 74 | |||
| S(F)SZ11-16000/110 | 16000 | 49 | 41 | 6500*4800*4800 | 19.3 | 90 | |||
| S(F)SZ11-20000/110 | 20000 | 55 | 45 | 6600*4900*5000 | 22.8 | 106 | |||
| S(F)SZ11-25000/110 | 25000 | 60 | 50 | 7000*4900*5200 | 27 | · | |||
| S(F)SZ11-31500/110 | 31500 | 67 | 57 | 7100*5000*5400 | 32.1 | 149 | |||
| S(F)SZ11-40000/110 | 40000 | 78 | 65 | 7300*5200*5500 | 38.5 | 179 | |||
| S(F)SZ11-50000/110 | 50000 | 86 | 71 | 7500*5500*5700 | 45.5 | 213 | |||
| S(F)SZ11-63000/110 | 63000 | 104 | 87 | 7900*5800*5900 | 54.1 | 256 |